1925 24 Avenue NW – High-Exposure Main floor Retail
1925 24 Ave NW, Calgary, AB T2M 1Z4, Canada
1925 24 Ave NW, Calgary, AB T2M 1Z4, CanadaProperty Details
- Type: Retail / Office
- Category: For Lease
- Status: Available Immediately
- ICSC Property: ICSC Property
- Year built: 2025
Ask an Agent About This Property
Property Description
- Description:
• New, high-traffic development in a growing area
• Prominent corner location at 24 Avenue & 19 Street NW with excellent visibility (up to 8,000 VPD)
• Minutes from North Hill / 16 Avenue NW Retail Hub (up to 50,000 VPD)
• Close to University of Calgary and only 10 minutes from Foothills Hospital
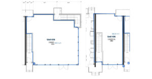
• Thoughtfully designed, efficient commercial layouts
• Ideal for professional offices, boutique retail, or service-oriented businesses
• Dedicated front and rear access for each unit
Sale / Lease Information
- Rooms:
Unit Operating Cost (per sq ft) Unit Size (sq ft) 1 $14 PSF (Est. 2026) 960 2 $14 PSF (Est. 2026) 606

