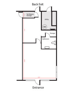
Retail End-cap Sublease – 1110 47 Legacy View SE
47 Legacy Vw S E, Calgary, AB T2X 2C3, Canada
47 Legacy Vw S E, Calgary, AB T2X 2C3, CanadaProperty Details
- Type: Retail
- Category: For Sublease
- Status: Available Immediately
- ICSC Property: ICSC Property
- Year built: 2018
Ask an Agent About This Property
Property Description
- Description:
• Rare Sublease Opportunity in a 100% Leased Centre
• A brand new K-9 school 1 Block Away
• High-Visibility Position Within Legacy Village
• Established 2018-Built Shopping Centre
• Strong Mix of National & Local Tenants
• Multiple Food Vendors Driving Daily Traffic
• Essential-Service Anchored Neighbourhood Hub
• Affluent SE Community with 33,000+ Residents Within 3KM
• Ideal Entry Point into the Commercial Leasing Market
• Turnkey Size for Retail, Service, or Specialty Use
Sale / Lease Information
- Rooms:
Operating Cost (per sq ft) Unit Size (sq ft) $22.00 826

